SPO "Dženex II" Lukavac -
PRIZEMLJE

062 994 347

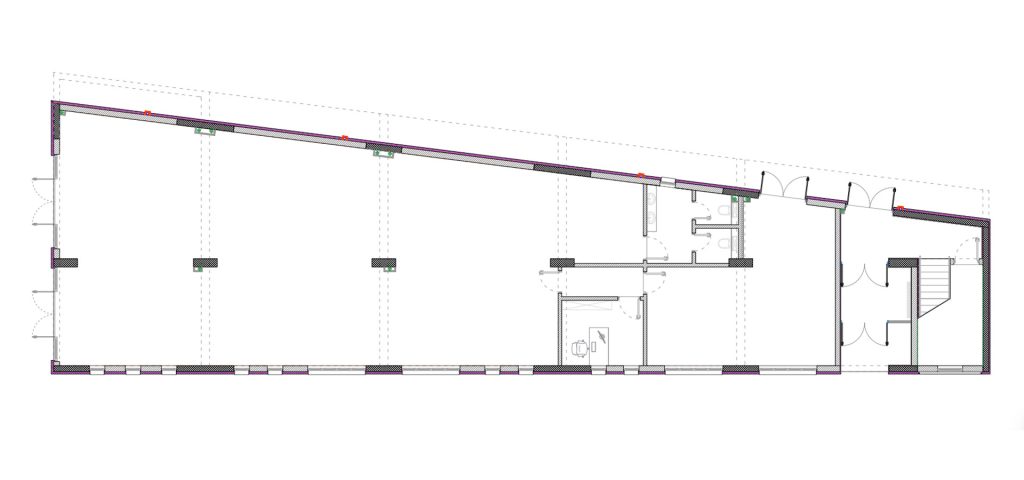
Prizemlje - 272,12 m²